開館時間・休館日
休みの日は、開館カレンダーでも確認してください。
開館時間
| 図書館 | 平日 | 10:00~21:00 |
| 土日祝 | 9:00~18:00 | |
| 地域・郷土資料館 | 全日 | 10:00~18:00 |
休館日
- 毎週月曜日、第4水曜日(祝日の場合は翌平日)
- 年末年始(12月29日~1月4日)
- 資料整理期間
- このほか、臨時休館することがあります。
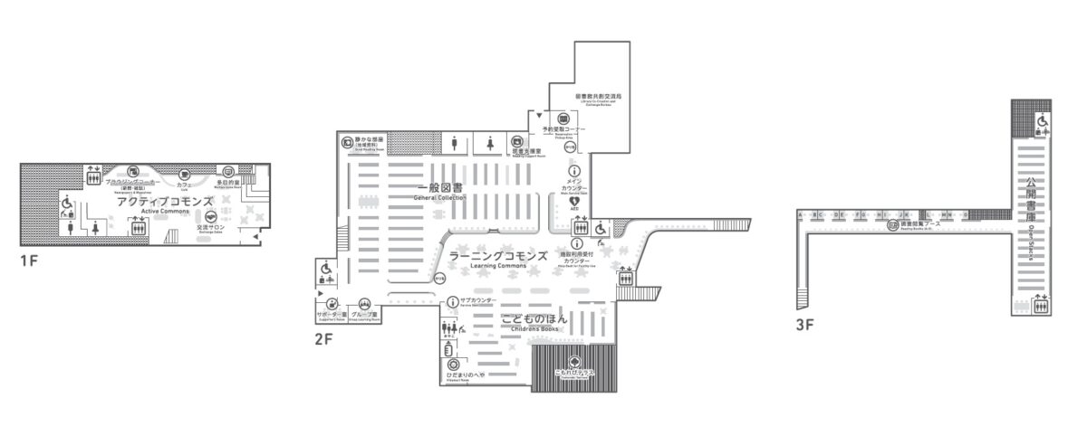
フロアマップ

みんなでつかう
閲覧席
1階のブラウジングコーナー、2階の静かな部屋、2階と3階の吹き抜けのカウンター席など、いろいろな席があります。好きな場所を見つけて、ゆっくり読書を楽しんでください。



ラーニングコモンズ
ラーニングコモンズは、開放的な空間で、交流しながら学べる場所です。

資料検索機
資料検索機は、5台あります。図書館の本をさがしたり、予約したりできます。

セルフ貸出機
セルフ貸出機は、アクセシブル貸出機を含めて、4台あります。貸出カードをかざして、借りたい本を台に置くと、本を借りることができます。

予約受取コーナー
予約受取コーナーでは、予約した本を自分で受け取ることができます。コーナーのなかにあるセルフ貸出機をつかって、その場で借りられます。
返却ポスト
返却ポストは、北側と西側の入口に1つずつあります。投入口から本を入れると、自動で返却されます。入れるときは、本を1冊ずつゆっくり入れてください。
メインカウンター(北側エントランス前)
本の貸出・返却、貸出カードの新規発行・変更・再発行、予約・リクエスト、レファレンスサービス、インターネットの申し込み、団体受付、その他利用申請などを行っています。
サブカウンター(こどものほんの横)
本の貸出・返却、貸出カードの新規発行・変更・再発行、レファレンスサービスなどを行っています。

申し込んでつかう
グループ室
グループでの活動などに使えるグループ室が1室あります(定員8名)。使うときは、メインカウンターで申し込んでください。
※営利活動では使えません。


調査閲覧ブース
半個室の空間で、調査や読書に集中したいときに使える調査閲覧ブースは、15席あります。使うときは、メインカウンターで申し込んでください。

パソコン・インターネット
インターネット・データベース端末(4月以降にサービス開始予定)
インターネット検索用パソコン(2台)、データベース閲覧用パソコン(2台)があり、調査・研究のための調べものが可能です。

iPadの貸出(4月以降にサービス開始予定)
貸出カードを持っている人は、館内での利用に限り、iPadを借りることができます。借りるときは、メインカウンターにきてください。
Wi-Fi
お持ちのパソコン・スマートフォン・タブレットで、無料のWi-Fi(無線LAN)が使えます。SSIDとパスワードは館内に掲示しています。
親子でつかう
ひだまりのへや
ひだまりのへやは、親子でいっしょに絵本などを楽しめる場所です。定期的におはなし会を開催しています。

おやこトイレ
親子でいっしょに使えるトイレがあります。おむつを替える台もあります。


授乳室
ゆったり座れる授乳室があります。ミルク用の給湯器があり、おむつ替えもできます。


バリアフリー
エレベーター
1階から2階まで行けるエレベーターと、1階から3階まで行けるエレベーターが、それぞれ1基ずつあります。エレベーターには点字表記があります。


電動昇降机
電動昇降机は、3席あります。車いすの方が使いやすいように、高さを調整できます。

アクセシブル貸出機
アクセシブル貸出機は、多言語対応で、点字表記や音声案内の機能がついた貸出機です。

読書支援室
読書支援室は、誰もが自分に合った方法で本や物語を楽しめるよう、様々な形態の読書環境(読書バリアフリー)を提供する部屋です。


多機能トイレ
多機能トイレは、4ヵ所にあります。


飲食・撮影など
飲食
ペットボトルや水筒など、ふたがあり、こぼれない飲み物は、どこでも持ち込めます。食事は、1階の交流サロンか屋外のテラスを利用してください。
撮影
撮影をしたい方は、メインカウンターで手続きをしてください。プライバシーに配慮し、写真にほかの人が写り込まないようにしてください。

